Nowy dwukondygnacyjny dom z widokiem na morze w prestiżowej części Pomorie
Pomorie, Lahana330 000 €
196м21684 €/м2
nieumeblowane
- ID:38108
- Miasto:Pomorie
- Kompleks:Lahana
- Wybudowany:2025
- Umeblowane:Nieumeblowane
- Odległość od morza:700 m
- Канализация:Nie
- Piętro:2
- Konstrukcja:Cegła
- Ogrzewanie:Prąd
- Ochrona:Nie
- Basen:Nie
Prezentujemy nowo wybudowany, wolnostojący dom (2025), oddany do użytku z Aktem 16, położony w Pomorie. Nieruchomość łączy nowoczesne budownictwo, komfort i przestrzeń, oferując piękny widok na morze, funkcjonalny układ oraz działkę o powierzchni 360 m² z możliwością budowy basenu.
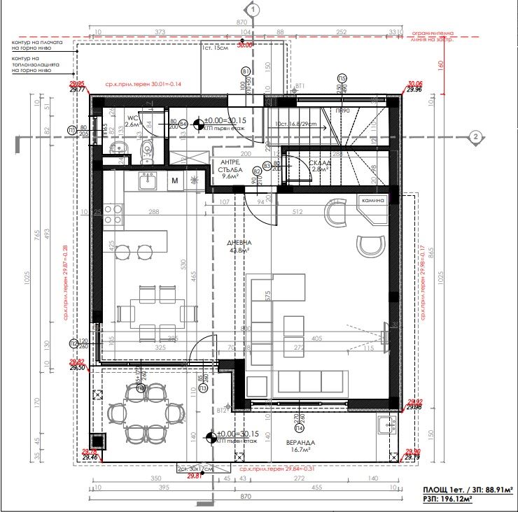
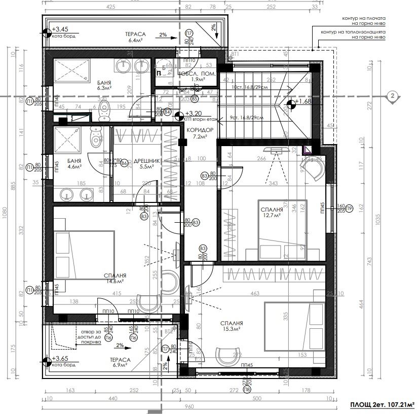
Dom ma łączną powierzchnię 196 m² i składa się z dwóch kondygnacji. Przestrzenie są dobrze zaplanowane, z dużą ilością naturalnego światła. Z salonu wychodzi się na dużą werandę o powierzchni 30 m² – idealną na relaks, rodzinne spotkania i letnie wieczory na świeżym powietrzu. Dwie tarasy z pełnym lub częściowym widokiem na morze dodatkowo potęgują poczucie przestrzeni i swobody.
Rozkład pomieszczeń:
- Poziom pierwszy: hol wejściowy z wygodną garderobą, osobna toaleta, schowek pod schodami, przestronny salon z miejscem na kuchnię i jadalnię oraz wyjściem na werandę 30 m² i ogród.
- Poziom drugi: trzy oddzielne sypialnie, dwie łazienki, dwa tarasy z widokiem na morze, wewnętrzna klatka schodowa.
Komfort i udogodnienia techniczne:
- Ogrzewanie podłogowe we wszystkich pomieszczeniach – maksymalny komfort przez cały rok.
- Przygotowane instalacje pod klimakonwektory chłodzące — wygodna klimatyzacja latem.
- 2–3 miejsca parkingowe na posesji.
- Możliwość budowy basenu – cena 35 000 euro.
Główne parametry:
- Typ nieruchomości: dom wolnostojący, nowy
- Lokalizacja: Pomorie
- Powierzchnia domu: 196 m²
- Działka: 360 m²
- Pokoje: 4 (w tym przestronny salon)
- Sypialnie: 3
- Łazienki: 2
- Toalety: 1
- Balkony/tarasy: 2
- Weranda: 30 m²
- Dokumenty: Akt 16
Ta nieruchomość to świetny wybór do zamieszkania przez cały rok lub jako dom wakacyjny nad morzem. Łączy nowoczesne udogodnienia, spokój i funkcjonalność, a także oferuje przyjemną nadmorską atmosferę i wysoką wartość dodaną. Skontaktuj się z nami, aby uzyskać więcej informacji i umówić się na prezentację.